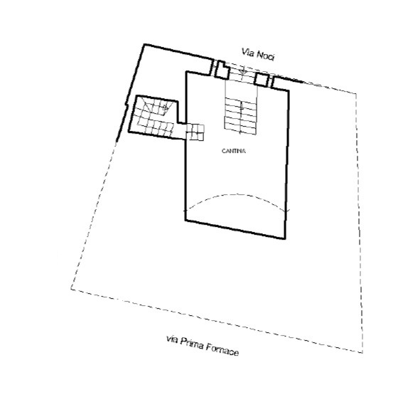
PROPONIAMO IN VENDITA A GINOSA IN VIA PRIMA FORNACE UNA ABITAZIONE INDIPENDENTE A PIANO TERRA COMPOSTA DA ZONA GIORNO CON ANGOLO COTTURA, CAMERA DA LETTO SOPPALCATA, CAMERETTA E BAGNO.
INOLTRE L’IMMOBILE E’ DOTATO DI UNA CANTINA DI CIRCA 34 MQ SOTTOSTANTE L’ABITAZIONE CON ACCESSO SIA DALL’INTERNO CHE DA VIA NOCI.
L’ABITAZIONE SI PRESTA MOLTO BENE SIA AD USO RICETTIVO, CHE ABITATIVO O TAVERNETTA PRIVATA.