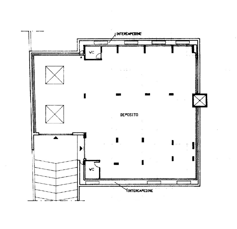
PROPONIAMO IN VENDITA A GINOSA UN LOCALE AD USO GARAGE/DEPOSITO IN LARGO GIORGIO ALMIRANTE DELLA SUPERFICIE DI CIRCA 350 MQ CON ALL’INTERNO DUE BAGNI.
L’IMMOBILE DISPONE DI DUE INGRESSI, ATTRAVERSO DUE SARACINESCHE AUTOMATICHE DI DIVERSE DIMENSIONI, QUESTO CONSENTE ANCHE UNA DIVISIONE DEL LOCALE. VI E’ INOLTRE LA POSSIBILITA’ DI DILAZIONE DEL PREZZO DI ACQUISTO.
“PREZZO TRATTABILE”
Panoramica
Dimensioni:
350
m2
Tipo:
Locale Deposito / Garage
Dettagli sulla proprietà
ID proprietà:3705
Prezzo:
220.000€
Dimensioni della proprietà:
350 m2
Tipo di proprietà:Locale Deposito / Garage
Stato della proprietà:In Vendita
GiardinoNo
BalconeNo
TerrazzaNo
RiscaldamentoNon Indicato
Classe EnergeticaNon Indicato
CondizioniAbitabile
Stato al RogitoLibero
Box/GarageSi
PianoTERRA
Mappa
Indirizzo
Via Giorgio Almirante, 74013 Ginosa Taranto, Italy